ENTREE, hier creëren we een plek voor iedereen.

Hoe zorg je ervoor dat allerlei verschillende mensen zich op dezelfde plek thuis kunnen voelen? Die vraag is leidend in mijn werk als projectleider bij ECHO Urban Design. Elke dag werk ik met plezier mee aan de creatie van fijne plekken voor mensen om samen te leven, zoals Entree. En het zal geen verrassing zijn: daar komt heel wat bij kijken.
Waar de buurman op zoek is naar rust en ruimte, wil de overbuurvrouw gezelligheid en reuring. Waar de gemeente een openbare route wil creëren, wil een gebouwontwikkelaar een gemeenschappelijke tuin maken. En toch kunnen deze uitersten allemaal bij elkaar komen; fascinerend!
Wat we doen
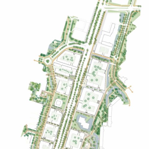
Als ontwerpbureau hebben wij een grote impact op hoe mensen elkaar tegenkomen en samenleven. In het voorlopig ontwerp voor de openbare ruimte zetten we de sfeer neer die bepaalt hoe de wijk eruit gaat zien. Ook laten we zien hoe de wijk gaat functioneren. In deze fase van het project zijn wij de verbinder tussen alle belangen van verschillende partijen. Daar ligt onze kracht.
Terwijl onze partner Witteveen+Bos vooral de technische haalbaarheid bewaakt, zoals Jeroen Radix eerder schreef, houden wij de visie en ambities uit het structuurontwerp van Entree levend en werken deze uit tot een totaalontwerp. In dit ontwerp zorgen wij dat de plannen van de gebouwontwikkelaars goed aansluiten op de structuur van de wijk en dat Entree goed aansluit op de omliggende wijken. Hiervoor gaan we dieper in op de beleving van de toekomstige bewoners. Hoe bereik je straks je huis? Hoe loop je over die brug, wat voor een uitzicht heb je dan? Maar we moeten de praktische zaken zeker niet vergeten: Hoe worden gebouwen bevoorraad en waar wordt afval ingezameld? Met elke centimeter buitenruimte houden wij ons bezig.
Doorvragen is de sleutel
Tijdens inloopavonden die de gemeente organiseert, via de klankbordgroep met bewoners en tijdens overleggen, stemmen we de plannen af met alle betrokken partijen. Zo halen we waardevolle informatie op, bijvoorbeeld een belangrijke looproute of een plek waar kinderen vaak oversteken.
De sleutel zit ‘m in doorvragen, zodat we volledig op de hoogte zijn van ieders belangen. Het doorvragen maakt dat bewoners ook hun zorgen delen. Over overlast bijvoorbeeld en of er wel voldoende parkeermogelijkheid is. Soms kunnen we die zorgen wegnemen, andere keren is dat lastiger. Wij vragen mensen dan om mee te denken en voorbeelden te geven waar zij zich wel prettig bij voelen.
Flexibel ontwerp
De ontwikkelaars van Entree werken nog aan de plannen voor de gebouwen. Dat vraagt van ons dat wij het ontwerp van de buitenruimte flexibel houden. Die flexibiliteit is precies wat het project zo bijzonder maakt. Ons ontwerp moet mee kunnen bewegen met wat er de komende tijd in het ontwerpproces wordt bepaald. Denk bijvoorbeeld aan waar de in- en uitgangen van elk gebouw komen. Dat weten we nu nog niet, maar wij schetsen al wel een duidelijk uitgangspunt van elke straat: zo komt deze straat er straks uit te zien. De ingangen kunnen later geïntegreerd worden in het ontwerp, zonder dat dit het straatbeeld aantast.
Tijdens het afwegen van alle belangen is het vooral belangrijk om het doel voor ogen te houden: van Entree een wijk maken die goed verbonden is met de omgeving, met veel groen, water en recreatiemogelijkheid. En tegelijkertijd om te voldoen aan de vraag van bewoners die in de Randstad leven: fijn wonen, snel op werk of studie zijn, winkels in de buurt en ruimte om anderen te ontmoeten. Een mooie balans tussen rust en reuring. Zo ontwerpen we een prettige omgeving voor iedereen.
Eva van Rijen is sinds november 2021 projectleider bij ECHO Urban Design. Ze vindt het fascinerend dat zoveel verschillende mensen met andere belangen zich op dezelfde plek thuis kunnen voelen. Samen met landschapsarchitecten Nora Kooijmans, Menno de Roode en Filippus van Leeuwen werkt ze aan Entree.